STAN U PRIZEMLJU SA VRTOMJednosobni stan 45,01 m2 PRODANO

Prodaje se pristojan stan sa svim potrebnim prostorijama, kuhinja i dnevni boravak u jednoj cijelini, prostrana spavaća soba, sa naglaskom na zasebnu ostavu i mali vrt.

https://www.stanovi-novogradnja-zagreb.com/wp-content/uploads/2026/03/568647-sold-606688_1920-640x320.png
https://www.stanovi-novogradnja-zagreb.com/wp-content/uploads/2026/03/568647-sold-606688_1920-640x320.png
https://www.stanovi-novogradnja-zagreb.com/wp-content/uploads/2025/01/3D-TLOCRT-C0.png
https://www.stanovi-novogradnja-zagreb.com/wp-content/uploads/2025/01/1.0.-C0-Tlocrt-stana-sa-kvadraturom_n.png

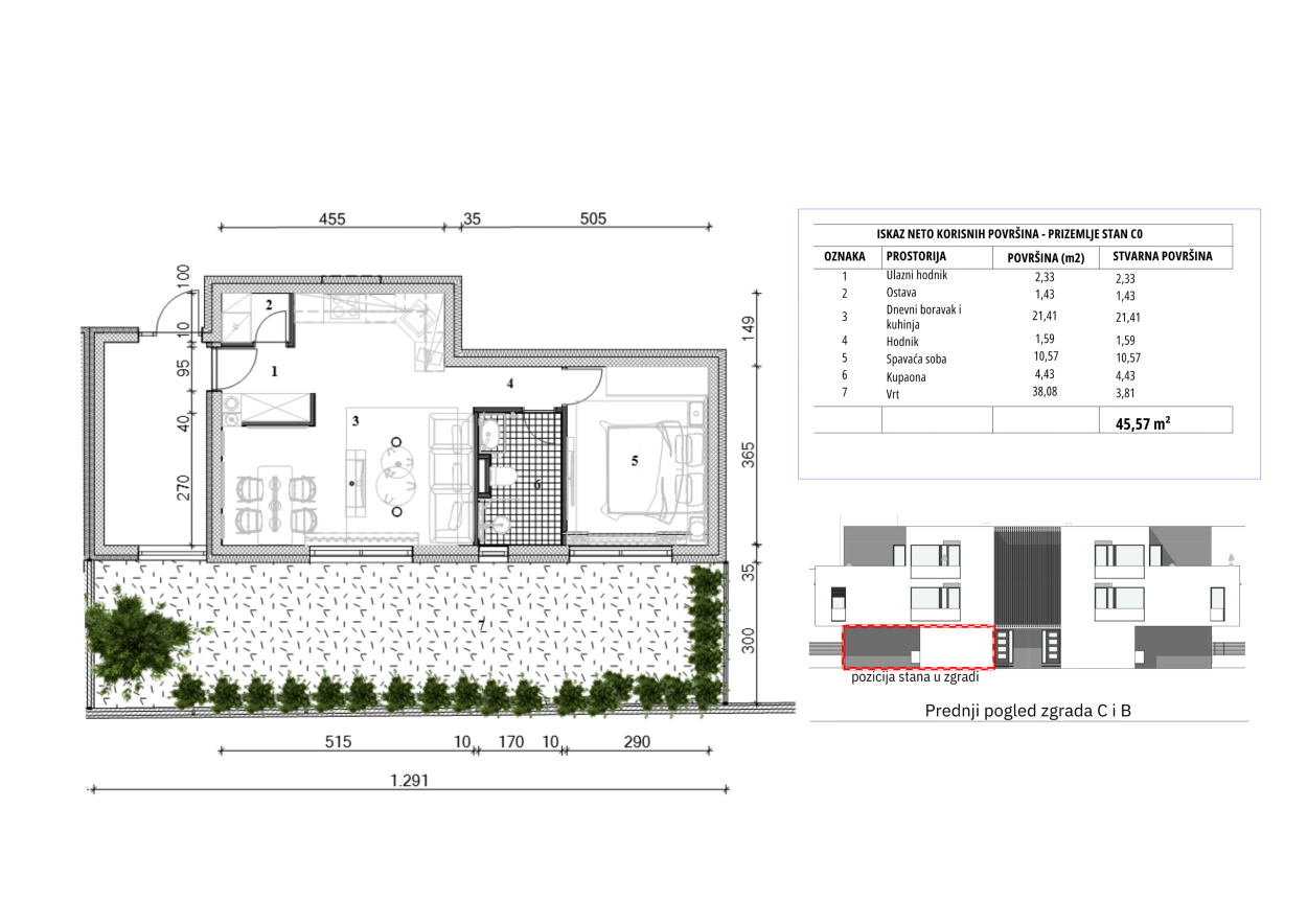
STAN U PRIZEMLJU - C0Jednosobni 45,01 m2

Ulazni hodnik2,33 m2
Ostava1,43 m2
Dnevni boravak i kuhinja20,85 m2
Hodnik1,59 m2
Spavaća soba10,57 m2
Kupaonica4,33 m2
Vrt3,81 m2

Stanbeni prostor m2:  41,20 m2
Vrt: 3,81 m2
Ukupno: 45,01 m2

https://www.stanovi-novogradnja-zagreb.com/wp-content/uploads/2025/01/Image5.png

Novogradnja

U PRODAJI!

https://www.stanovi-novogradnja-zagreb.com/wp-content/uploads/2025/01/Image5.png

Novogradnja

U PRODAJI!

https://www.stanovi-novogradnja-zagreb.com/wp-content/uploads/2025/01/10-1280x905.png

Vaš partner u izgradnji doma iz snova!

 

LAZ-PERFECTION d.o.o. Jarun 54, 10 000 Zagreb
info@laz-perfection.hr
TELEFON

Follow us:

PRAVNE NAPOMENE: POGLEDAJ

© LAZ-PERFECTION d.o.o.  2025. All rights reserved

 Izrada web stranice TRAMA.HR

Politika privatnosti

PRAVILA O KOLAČIĆIMA

Web stranica Stanovi novogradnja Zagreb koristi tzv. kolačiće (eng. „cookies“).

Kolačići su male tekstualne datoteke koje generira poslužitelj web stranica i koje se putem web preglednika pohranjuju na uređaju korisnika, kako bi mu se omogućila što kvalitetnija usluga i sadržaj. Pohranjuju određene informacije (npr. željene postavke jezika), koje vaš preglednik može reproducirati kada ponovno posjetite web stranicu (ovisno o trajanju kolačića).

Koristimo neophodne kolačiće za osnovnu funkcionalnost web stranice. Oni su ključni za omogućavanje osnovnih značajki i usluga, uključujući pristup sigurnim dijelovima stranice. Ovi kolačići ne mogu se onemogućiti.

Prilikom prvog pristupa web stranici prikazat će vam se obavijest o korištenju kolačića uz mogućnost davanja suglasnosti za njihovu upotrebu. Nastavkom korištenja web stranice pristajete na uporabu kolačića.

Korisnici mogu samostalno regulirati postavke kolačića putem svog web preglednika (ograničiti ili onemogućiti njihovo pohranjivanje). Napominjemo da onemogućavanje kolačića može utjecati na funkcionalnost stranice, a Laz Perfection ne preuzima odgovornost za moguće gubitke funkcionalnosti i kvalitete sadržaja.

Više informacija o postavkama preglednika za upravljanje kolačićima možete pronaći na sljedećim poveznicama:

Korištenjem ove web stranice smatra se da su korisnici upoznati i suglasni s uvjetima korištenja, uključujući pravila o obradi i zaštiti osobnih podataka te upravljanju kolačićima.

POLITIKU PRIVATNSOTI I ZAŠTITU OSOBNIH PODATAKA POGLEDAJTE OVDJE: https://www.stanovi-novogradnja-zagreb.com/pravne-napomene/